Demander une étude gratuite Prendre RDV en ligne uniquement pour Blois et Romorantin

Maison Neuve 2 chambres garage

03 décembre 2024
Visuel façade avant Visuel Façade arrière Plan intérieur

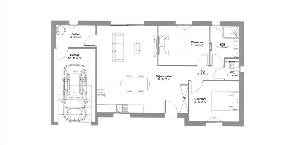
Maison neuve modèle de plein pied optimisé avec garage.

Parfaitement conçue pour répondre aux besoins d'une famille, elle offre des espaces pratiques et lumineux.

Disposant d'une surface habitable totale de 70 m2 et 16 m2 de garage .

Vous retrouverez dans ce modèle une entrée en renfoncement, ouverte avec emplacement pour futur rangement placard donnant accès à un espace de vie lumineux de 35 m2 avec salon/séjour et cuisine ouverte façade avant proche du cellier et garage .

2 chambres avec emplacement pour futur rangement placard parfaites pour accueillir votre famille ou pour investissement locatif .

Une salle d'eau, un Wc séparé.

Système de chauffage en Pompe à Chaleur Air/Air par Split et appoints électriques ainsi que ballon thermodynamique.

Ce modèle avec un design intelligent alliant confort, praticité et style contemporain aux Normes RE 2020 pour une consommation énergétique optimisée.

Possibilité de personnalisation selon vos envies.

Pour plus de renseignements contactez nous par téléphone au 02.48.24.29.07 ou par mail à l'adresse maison.laure18@wanadoo.fr

ASSURANCES DOMMAGE OUVRAGE ET GARANTIE CONSTRUCTEUR COMPRISES.

A partir de 120900€ hors terrain, Voiries Réseaux Distribution, Embellissements intérieurs et extérieurs et Taxe d'aménagement.

Photos non contractuelles et tarif modifiable sans préavis.