Demander une étude gratuite Prendre RDV en ligne uniquement pour Blois et Romorantin

Maison Neuve 2 chambres garage

09 décembre 2024
Visuel façade avant Visuel Façade arrière Plan intérieur

Maison neuve modèle de plein pied avec garage confort et fonctionnalité. 

Parfaitement conçue pour répondre aux besoins d'une famille, elle offre des espaces optimisés et lumineux.

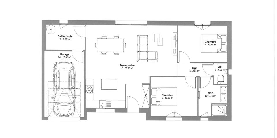
Disposant d'une surface habitable totale de 75 m2 et 15 m2 de garage .

Vous retrouverez dans ce modèle une entrée en renfoncement séparée avec emplacement pour futur rangement placard donnant accès à un espace de vie lumineux de 38.5 m2 avec salon/séjour et cuisine ouverte proche du cellier et garage .

De plus, 2 belles chambres de 10.5 m2 avec emplacement pour futur rangement placard parfaite pour accueillir votre famille ou pour investissement locatif.

Une salle d'eau moderne, un Wc séparé.

Système de chauffage en Pompe à Chaleur Air/Air par Split et appoints électriques ainsi que ballon thermodynamique.

Ce modèle avec un design intelligent alliant confort, praticité aux Normes RE 2020 pour une consommation énergétique optimisée.

Possibilité de personnalisation selon vos envies.

Pour plus de renseignements contactez nous par téléphone au 02.48.24.29.07 ou par mail à l'adresse maison.laure18@wanadoo.fr

ASSURANCES DOMMAGE OUVRAGE ET GARANTIE CONSTRUCTEUR COMPRISES.

A partir de 118900€ hors terrain, Voiries Réseaux Distribution, Embellissements intérieurs et extérieurs et Taxe d'aménagement.

Photos non contractuelles et tarif modifiable sans préavis.