Demander une étude gratuite Prendre RDV en ligne uniquement pour Blois et Romorantin

Maison Neuve 2 chambres sans garage

09 décembre 2024
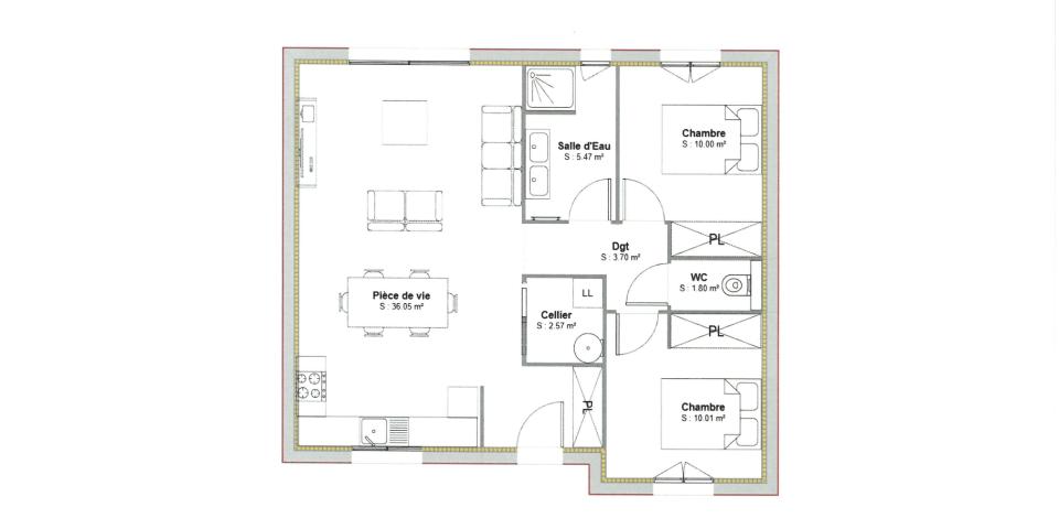
Visuel façade avant Visuel Façade arrière Plan intérieur

Maison neuve modèle sans garage qui allie confort et fonctionnalité. 

Parfaitement conçue pour un premier investissement, elle offre des espaces optimisés et lumineux.

Disposant d'une surface habitable totale de 70 m2.

Vous retrouverez dans ce modèle une entrée en renfoncement séparée avec emplacement pour futur rangement placard donnant accès à un espace de vie lumineux de 36m2 avec salon/séjour et cuisine ouverte.

De plus, 2 chambres de 10 m2 avec emplacement pour futur rangement placard parfaite pour accueillir une famille avec un enfant ou pour un investissement locatif.

Une salle d'eau moderne, un Wc séparé.

Système de chauffage en Pompe à Chaleur Air/Air par Split et appoints électriques ainsi que ballon thermodynamique.

Ce modèle avec un design intelligent alliant confort, praticité aux Normes RE 2020 pour une consommation énergétique optimisée.

Possibilité de personnalisation selon vos envies.

Pour plus de renseignements contactez nous par téléphone au 02.48.24.29.07 ou par mail à l'adresse maison.laure18@wanadoo.fr

ASSURANCES DOMMAGE OUVRAGE ET GARANTIE CONSTRUCTEUR COMPRISES.

A partir de 102500€ hors terrain, Voiries Réseaux Distribution, Embellissements intérieurs et extérieurs et Taxe d'aménagement.

Photos non contractuelles et tarif modifiable sans préavis.