Demander une étude gratuite Prendre RDV en ligne uniquement pour Blois et Romorantin

Maison Neuve 3 chambres garage

03 décembre 2024
Visuel façade avant Visuel Façade arrière Plan intérieur

Maison neuve de plein pied avec garage qui allie confort et fonctionnalité idéal pour primo accédant ou investisseurs locatif. 

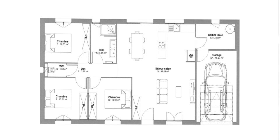
Parfaitement conçue pour répondre aux besoins d'une famille elle dispose d'une surface habitable totale de 85 m2 et 16 m2 de garage .

Vous retrouverez dans ce modèle une entrée ouverte donnant accès à un espace de vie lumineux de 38.5 m2 avec salon/séjour et cuisine ouverte attenante au cellier et garage .

De plus, 3 chambres avec emplacement pour futur placard parfaites pour accueillir votre famille.

Une salle d'eau optimisée, un Wc séparé.

Système de chauffage en Pompe à Chaleur Air/Air par Split et appoints électriques ainsi que ballon thermodynamique.

Ce modèle avec un design intelligent alliant confort et praticité aux Normes RE 2020 pour une consommation énergétique optimisée.

Possibilité de personnalisation selon vos envies.

Pour plus de renseignements contactez nous par téléphone au 02.48.24.29.07 ou par mail à l'adresse maison.laure18@wanadoo.fr

ASSURANCES DOMMAGE OUVRAGE ET GARANTIE CONSTRUCTEUR COMPRISES.

A partir de 138900€ hors terrain, Voiries Réseaux Distribution, Embellissements intérieurs et extérieurs et Taxe d'aménagement.

Photos non contractuelles et tarif modifiable sans préavis.