Demander une étude gratuite Prendre RDV en ligne uniquement pour Blois et Romorantin

Maison Neuve 3 chambres garage

03 décembre 2024
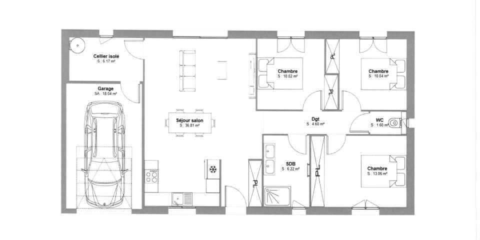
Visuel façade avant Visuel Façade arrière Plan intérieur

Magnifique maison neuve de plein pied avec garage qui allie luminosité, confort et fonctionnalité. 

Parfaitement conçue pour répondre aux besoins d'une famille, elle offre des espaces optimisés et lumineux.

Disposant d'une surface habitable totale de 88.5 m2 et 18 m2 de garage .

Vous retrouverez dans ce modèle une entrée semi ouverte avec emplacement pour futur placard donnant accès à un espace de vie lumineux de 36.8 m2 avec salon/séjour et cuisine semi ouverte proche du cellier et garage .

1 grande chambre de 13m2 avec emplacement pour futur rangement placard ainsi que 2 chambres de 10 m2 avec emplacement placard et porte fenetre.

Une salle d'eau spacieuse, un Wc séparé.

Système de chauffage en Pompe à Chaleur Air/Air par Split et appoints électriques ainsi que ballon thermodynamique.

Ce modèle avec un design intelligent alliant confort, praticité et style contemporain aux Normes RE 2020 pour une consommation énergétique optimisée.

Possibilité de personnalisation selon vos envies.

Pour plus de renseignements contactez nous par téléphone au 02.48.24.29.07 ou par mail à l'adresse maison.laure18@wanadoo.fr

ASSURANCES DOMMAGE OUVRAGE ET GARANTIE CONSTRUCTEUR COMPRISES.

A partir de 143500€ hors terrain, Voiries Réseaux Distribution, Embellissements intérieurs et extérieurs et Taxe d'aménagement.

Photos non contractuelles et tarif modifiable sans préavis.