Demander une étude gratuite Prendre RDV en ligne uniquement pour Blois et Romorantin

Maison Neuve 3 chambres garage

04 décembre 2024
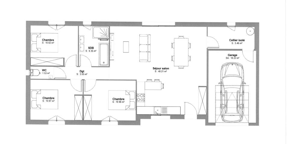
Visuel façade avant Visuel Façade arrière Plan intérieur

Maison neuve de plein pied avec garage qui allie confort et fonctionnalité. 

Parfaitement conçue pour répondre aux besoins d'une famille, elle offre des espaces optimisés et lumineux.

Disposant d'une surface habitable totale de 89 m2 et 18.25 m2 de garage .

Vous retrouverez dans ce modèle une entrée ouverte avec emplacement pour futur rangement placard donnant accès à un espace de vie lumineux de 40.2 m2 avec salon/séjour et cuisine ouverte .

De plus, 3 belles chambres avec emplacement pour futur rangement placard parfaites pour accueillir votre famille .

Une salle d'eau spacieuse, un Wc séparé.

Système de chauffage en Pompe à Chaleur Air/Air par Split et appoints électriques ainsi que ballon thermodynamique.

Ce modèle avec un design intelligent alliant confort, praticité et style contemporain aux Normes RE 2020 pour une consommation énergétique optimisée.

Possibilité de personnalisation selon vos envies.

Pour plus de renseignements contactez nous par téléphone au 02.48.24.29.07 ou par mail à l'adresse maison.laure18@wanadoo.fr

ASSURANCES DOMMAGE OUVRAGE ET GARANTIE CONSTRUCTEUR COMPRISES.

A partir de 143900€ hors terrain, Voiries Réseaux Distribution, Embellissements intérieurs et extérieurs et Taxe d'aménagement.

Photos non contractuelles et tarif modifiable sans préavis.