Demander une étude gratuite Prendre RDV en ligne uniquement pour Blois et Romorantin

Maison Neuve en L 3 chambres et garage

04 décembre 2024
Visuel façade avant Visuel Façade arrière Plan intérieur

Superbe maison neuve modèle en L de plein pied avec garage qui allie modernité, confort et fonctionnalité. 

Parfaitement conçue pour répondre aux besoins d'une famille, elle offre des espaces optimisés et lumineux.

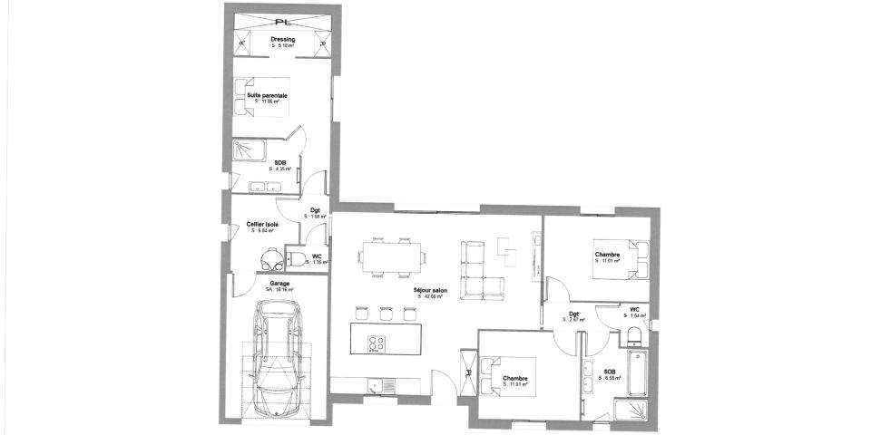
Disposant d'une surface habitable totale de 105 m2 et 18 m2 de garage .

Vous retrouverez dans ce modèle une entrée en renfoncement ouverte avec emplacement pour futur rangement placard donnant accès à un espace de vie lumineux de 42 m2 avec salon/séjour et cuisine proche du cellier et garage .

De plus, 2 belles chambres de 11 m2 avec emplacement pour futur rangement placard parfaites pour accueillir votre famille ainsi que une superbe suite parentale avec dressing et salle d'eau.

Une grande salle d'eau supplémentaire , deux Wc séparé.

Système de chauffage en Pompe à Chaleur Air/Air par Split et appoints électriques ainsi que ballon thermodynamique.

Ce modèle avec un design intelligent alliant confort, praticité et style contemporain aux Normes RE 2020 pour une consommation énergétique optimisée.

Possibilité de personnalisation selon vos envies.

Pour plus de renseignements contactez nous par téléphone au 02.48.24.29.07 ou par mail à l'adresse maison.laure18@wanadoo.fr

ASSURANCES DOMMAGE OUVRAGE ET GARANTIE CONSTRUCTEUR COMPRISES.

A partir de 175900€ hors terrain, Voiries Réseaux Distribution, Embellissements intérieurs et extérieurs et Taxe d'aménagement.

Photos non contractuelles et tarif modifiable sans préavis.