Demander une étude gratuite Prendre RDV en ligne uniquement pour Blois et Romorantin

Maison Neuve en T 4 chambres et double garage

16 décembre 2024
Visuel façade avant Visuel Façade arrière Plan intérieur

Superbe maison neuve modèle en T de plein pied avec double garage qui allie modernité, confort et fonctionnalité. 

Parfaitement conçue pour répondre aux besoins d'une famille, elle offre des espaces optimisés et lumineux.

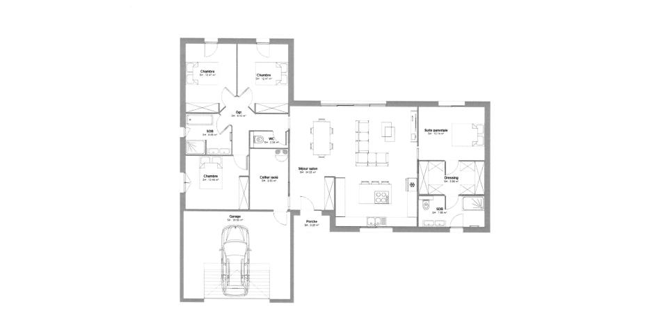
Disposant d'une surface habitable totale de 144.5 m2 et 35 m2 de garage .

Vous retrouverez dans ce modèle une entrée en renfoncement séparée avec emplacement pour futur rangement placard donnant accès à un espace de vie lumineux de 54 m2 avec salon/séjour et cuisine semi ouverte proche du cellier .

De plus, sur la droite de la maison une grande suite parentale avec salle d'eau et dressing ainsi que 3 belles chambres avec emplacement pour futur rangement placard de 12.5 m2 sur la gauche de celle ci parfaite pour accueillir votre famille.

Une grande salle d'eau moderne, un Wc séparé.

Système de chauffage en Pompe à Chaleur Air/Air gainable multizones ainsi que ballon thermodynamique.

Ce modèle avec un design intelligent alliant confort, praticité et style contemporain aux Normes RE 2020 pour une consommation énergétique optimisée.

Possibilité de personnalisation selon vos envies.

Pour plus de renseignements contactez nous par téléphone au 02.48.24.29.07 ou par mail à l'adresse maison.laure18@wanadoo.fr

ASSURANCES DOMMAGE OUVRAGE ET GARANTIE CONSTRUCTEUR COMPRISES.

A partir de 255500€ hors terrain, Voiries Réseaux Distribution, Embellissements intérieurs et extérieurs et Taxe d'aménagement.

Photos non contractuelles et tarif modifiable sans préavis.