Demander une étude gratuite Prendre RDV en ligne uniquement pour Blois et Romorantin

Maison Neuve en U 3 chambres 1 bureau et double garage

16 décembre 2024
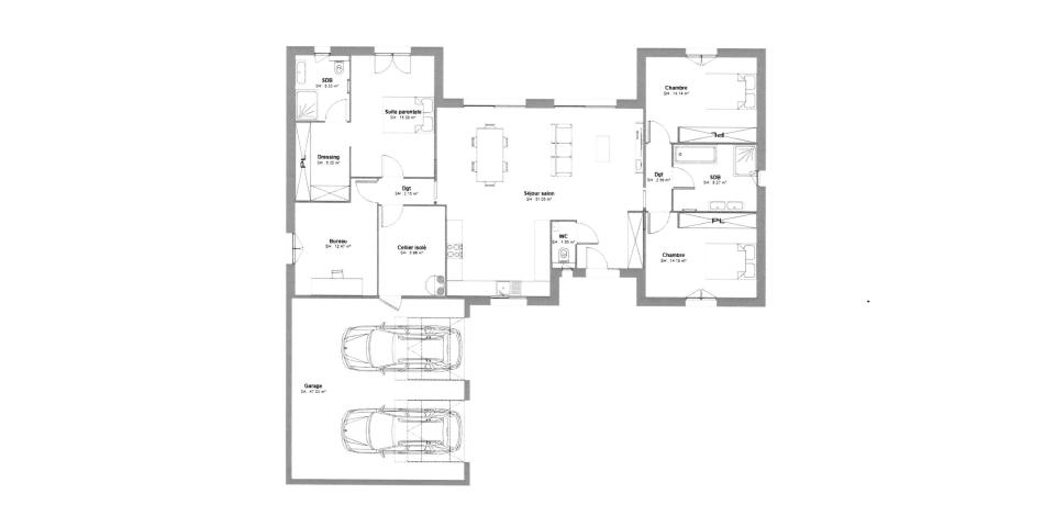
Visuel façade avant Visuel Façade arrière Plan intérieur

Superbe maison neuve modèle en U de plein pied avec double garage qui allie modernité, confort et fonctionnalité. 

Parfaitement conçue pour répondre aux besoins d'une famille, elle offre des espaces optimisés et lumineux.

Disposant d'une surface habitable totale de 142 m2 et 47 m2 de garage .

Vous retrouverez dans ce modèle une entrée en renfoncement, séparée avec emplacement pour futur rangement placard donnant accès à un espace de vie lumineux de 51m2 avec salon/séjour et cuisine semi ouverte attenante au cellier et garage .

De plus, Une suite parentale avec salle d'eau et dressing très spacieuse ainsi que un bureau de 12.5 m2 sur la gauche de notre maison et 2 belles chambres avec emplacement pour futur rangement placard de 14.15 m2 sur la droite de celle ci parfaite pour accueillir votre famille.

Une grande salle d'eau moderne, un Wc séparé.

Système de chauffage en Pompe à Chaleur Air/Air par gainable multizones ainsi que ballon thermodynamique.

Ce modèle avec un design intelligent alliant confort, praticité et style contemporain aux Normes RE 2020 pour une consommation énergétique optimisée.

Possibilité de personnalisation selon vos envies.

Pour plus de renseignements contactez nous par téléphone au 02.48.24.29.07 ou par mail à l'adresse maison.laure18@wanadoo.fr

ASSURANCES DOMMAGE OUVRAGE ET GARANTIE CONSTRUCTEUR COMPRISES.

A partir de 265900€ hors terrain, Voiries Réseaux Distribution, Embellissements intérieurs et extérieurs et Taxe d'aménagement.

Photos non contractuelles et tarif modifiable sans préavis.