Deprecated: Array and string offset access syntax with curly braces is deprecated in /home/maison-laure/www/production/vendor/typo3/phar-stream-wrapper/src/PharStreamWrapper.php on line 445
Maisons individuelles PMR | Maison Laure
Demander une étude gratuite Prendre RDV en ligne uniquement pour Blois et Romorantin

Maisons individuelles PMR

12 février 2019
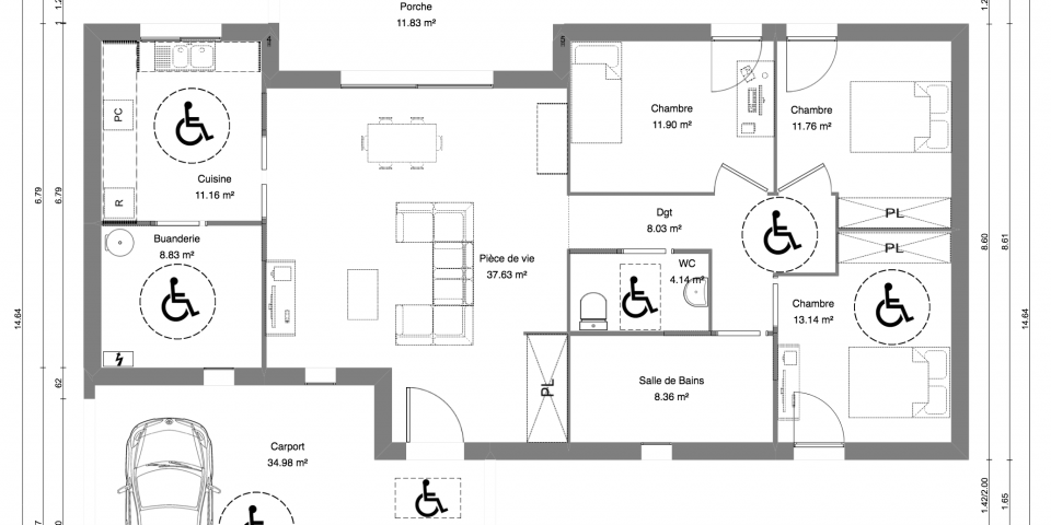
Maison individuelle PMR Maison individuelle PMR Plan maison individuelle PMR

L'accessibilité des personnes à mobilité réduite dans les maisons individuelles PMR est un savoir faire spécifique qu'un constructeur comme Maison Laure se doit de maîtriser.
La norme qui régit l’accessibilité handicapé est obligatoire pour toutes les maisons neuves dont le permis de construire a été demandé après le 1er janvier 2010. Elle prend en compte différents handicaps mais de manière générale, elle est fortement empreinte de la nécessité pour un fauteuil roulant de pouvoir circuler. Elle concerne les maisons individuelles ou construites pour être louées ou vendues. N'hésitez pas à appeler nos agences si vous souhaitez de plus amples renseignements sur la règlementation PMR